TRANSPORT & DOMICILE June, 2017 | Page 96
GSPublisherVersion 0.15.100.100
page 96
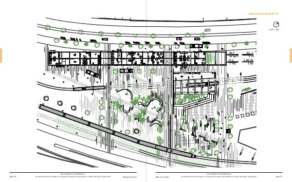
TRANSPORT & DOMICILE:
an architectural intervention to integrate transport infrastructure with housing for Barcelona.
Efimovich Alina
TRANSPORT & DOMICILE June, 2017 | Page 95
TRANSPORT & DOMICILE June, 2017 | Page 97
Joomag
is a leading digital publishing and content experience platform that helps businesses
create, distribute, and analyze high-design editorial content, including digital magazines, online catalogs,
digital brochures, sales proposals, and marketing reports. Powered by AI and content automation,
Joomag
enables marketers, publishers, and non-creatives to produce professional, interactive
content at scale.
The platform delivers an exceptional, mobile-optimized reading experience and improves content performance with
individual level analytics, audience insights, and segmentation tools. By uncovering reader interests and
enabling re-engagement through targeted campaigns and personalized content recommendations,
Joomag
helps businesses increase reader engagement and drive higher conversion rates.