PCS Specification Guide 2024 2024 | страница 36

E E
36

FACE FRAME & DOOR ( S ) ONLY

C C
35 ” - 55 ” Tall Frames
B
D
B
D
A A
C C
65 ” - 77 ” Tall Frames
E
E
B
D
B
D
E
E
A A
C C
84 ” - 96 ” Tall Frames
B
E
D
B
E
D
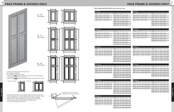
• Includes face frame , door ( s ) and hinges only
• No cabinet box included
• Not available with soft-close hinge
• Cabinet code width refers to the size of the door , or two doors together , not the outside dimension of the frame
• Cabinet code height refers to the overall height of the frame not the doors
49 3 / 4 " 49 3 / 4 "
Example : FD1841
18 ”
18 ” FD3641
36 ”
A
A
41 ” 41 ” 41 ”
TALL CABINETS
• Face Frames are made using 3 " stiles and rails and may be cut down in width and height by 1 ½ " on both sides and both ends - in total , the overall
35 ” - 55 ” frame dimensions can be reduced
Tall Frames B by 3 " in both width D B and height
D
• Frame and Door Sets ship flat packed and ready to assemble ( RTA )
• Stiles are pre-bored for dowels and rails ship with dowels pre-inserted for assembly in the field
C
C
1 1 / 2 ”
3 ”
Face Frame can be cut down a maximum of 1 1 / 2 " from each side
A A
C C