Natoya Bowen Portfolio Jun. 2014 | Page 17
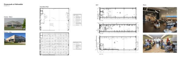
RCP
Photos
Suite 115C
Suite 115B
Suite 115A
Natoya Bowen Portfolio Jun. 2014 | Page 16
Natoya Bowen Portfolio Jun. 2014 | Page 18