Natoya Bowen Portfolio Jun. 2014 | страница 16
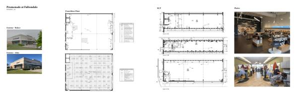
Promenade at Fultondale
Fultondale , AL
Demolition Plans
Exterior - Before
Exterior - After
Natoya Bowen Portfolio Jun. 2014 | страница 15
Natoya Bowen Portfolio Jun. 2014 | страница 17