|
ENTRE 4.2
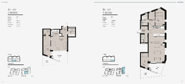
B2- 103
3-ROMS BAD
5.0
|
H = 1200 |
BAD 5.0
Lehmanns Brygge
- BYGG B2
OPPHOLD 49.9
|
- 1. ETASJE
GASS- PEIS
|
Lehmanns Brygge |
Bygg: |
B2 |
Etasje: |
1 |
BRA: |
100 m 2 |
P-rom: |
90 m 2 |
Terrasse: |
11 m 2 |
Hage: |
15 m 2 |
OPPHOLD 49.9
|
GASS- PEIS
SOV 8.7
|
BAD 5.6
ENTRE 4.2
|
BOD / GARD 7.4 |
SOV 13.1 |
SOV 8.7
|
TERRASSE ca 11 |
|
LEILIGHETSTYPE 3-ROMS |
AREAL BRA |
100 m ² |
Plan 01 |
AREAL P-ROM |
90 m ² |
Fasade: |
HAGE ca 15 |
Plan: |
SOV 8.7 tegn. nr: rev. nr:
Dato: sign / ktr / ok:
FASADE AREAL B2 BRA BYGG B1
BYGG 0 B2 1 2 3 4 5m 07.09.2016
N
P _ B2-103
AREAL P-ROM 90 m ²
KSK / FPE MÅLESTOKK A4 = 1:100 Merknader: DET VISES GENERELT TIL FORBEHOLD SATT OPP I VEDLEGG TIL KONTRAKT. AVVIK FRA VISTE LØSNINGER SAMT DE OPPGITTE AREALER Plan: tittel: VIL KUNNE FOREKOMME. AREALER ER REGNET IHT. NS 3940:2012
TERRASSE ca 11
YPE 3-ROMS 100 m ²
BYGG B1 BYGG B2 status:
tegn. nr:
BAD 5.0
PROSPEKT P _ B2-103
HAGE ca 15
OPPHOLD 49.9
LEILIGHET B2-103
ES GENERELT TIL FORBEHOLD SATT OPP I VEDLEGG TIL KONTRAKT. AVVIK FRA VISTE LØSNINGER SAMT DE OPPGITTE AREALER |
OMME. AREALER ER REGNET IHT. NS 3940:2012 |
|
LEILIGHETSTYPE 3-ROMS
Plan 01
|
AREAL BRA AREAL P-ROM |
100 m ²
90 m ²
|
N
HAGE ca 15
TERRASSE ca 11
Dato: 07.09.2016 sign / ktr / ok: KSK / FPE rev. nr:
H = 1200
Dato: 07.09.2016
GASS- PEIS
0 1 2 3 4 5m MÅLESTOKK A4 = 1:100
tittel:
LEILIGHET B2-103
status:
PROSPEKT
sign / ktr / ok: KSK / FPE
0 1 2 3 4 45 5m MÅLESTOKK A4 = 1:100