Lehmanns Brygge Prospekt for Lehmanns Brygge | Página 44

Lehmanns Brygge
BOD 3.1

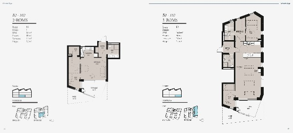
B2- 102

2-ROMS

Bygg:
B2
Etasje:
1
BRA:
54 m 2
P-rom:
49 m 2
Terrasse:
11 m 2
Hage:
12 m 2
11.8
KJØKKEN 5.2
ENTRE 4.8
SOV OPPHOLD11.8
19.4
TERRASSE ca 11
Lehmanns Brygge
HAGE ca 12
BAD 4.9
OPPHOLD- BYGG 19.4B2
T
TERRASSE ca 11
BOD 3.1
- 1. ETASJE
KJØKKEN 5.2
ENTRE 4.8
BAD 4.9
T
HAGE ca 12
OPPHOLD 19.4
LEILIGHETSTYPE 2-ROMS
AREAL BRA
54 m ²
Plan 01
AREAL P-ROM
49 m ²
Fasade:
SOV
Dato: 11.8 07.09.2016 tittel:
TERRASSE ca 11
status:
FASADE
AREAL B2 BRA
AREAL P-ROM
49 m ²
Dato:
BYGG B1
07.09.2016
sign / ktr / ok:
FPE / KSK
HAGE ca 12
BYGG
0 B2
1
2
N
MÅLESTOKK A4 =
1:100
3
4
tegn. nr:
5m
P _ B2-102
rev. nr:
Merknader: DET VISES GENERELT TIL FORBEHOLD SATT OPP I VEDLEGG TIL KONTRAKT. AVVIK FRA VISTE LØSNINGER SAMT DE OPPGITTE AREALER
Plan: tittel:
VIL KUNNE FOREKOMME. AREALER ER REGNET IHT. NS 3940:2012
2-ROMS 54 m ²
BYGG B1
BYGG B2
Plan:
LEILIGHET B2-102 status:
PROSPEKT tegn. nr:
P _ B2-102
ENERELT TIL FORBEHOLD SATT OPP I VEDLEGG TIL KONTRAKT. AVVIK FRA VISTE LØSNINGER SAMT DE OPPGITTE AREALER
E. AREALER ER REGNET IHT. NS 3940:2012
44
LEILIGHETSTYPE 2-ROMS
AREAL BRA
54 m ²
Plan 01
AREAL P-ROM
49 m ²
N sign / ktr / ok: FPE / KSK
0 1 2 3 4 5m MÅLESTOKK A4 = 1:100
rev. nr:
LEILIGHET B2-102 PROSPEKT
Dato: 07.09.2016 sign / ktr / ok: FPE / KSK
0 1 2 3 4 5m MÅLESTOKK A4 = 1:100