Portfolio_BasicUpcycling_Romero_Ratti_ Druckversion_Versione_Finale | Page 51

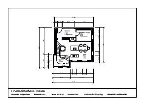
GSEducationalVersion 83 1.41 90 1.50 3.14 5.93 9.07 9.18 3.94 5.24 3.94 53 90 1.20 1.34 90 1.20 1.57 1.62 90 1.20 2.76 90 1.20 1.62 7.80 70 1.00 1.90 15 2.70 1.80 4.30 8.85 Hauswirtschaft 8.3m ² D : Putz W : Putz B : Keramikplatten Küche 20.1m ² D : Putz W : Täfer B : Riemen Entrance 10.3m ² D : Putz W : Putz B : Keramikplatten Vertikalraum siehe Detailplan Mini-Bar Obermeisterhaus Triesen Grundriss Erdgeschoss Massstab 1:50 Datum 26.05.20 Romero Ratti BasicStudio Upcycling Universität Liechtenstein
GSEducationalVersion 83 1.41 90 1.50 3.14 5.93 9.07 9.18 3.94 5.24 3.94 53 90 1.20 1.34 90 1.20 1.57 1.62 90 1.20 2.76 90 1.20 1.62 7.80 70 1.00 1.90 15 2.70 1.80 4.30 8.85 Hauswirtschaft 8.3m ² D : Putz W : Putz B : Keramikplatten Küche 20.1m ² D : Putz W : Täfer B : Riemen Entrance 10.3m ² D : Putz W : Putz B : Keramikplatten Vertikalraum siehe Detailplan Mini-Bar Obermeisterhaus Triesen Grundriss Erdgeschoss Massstab 1:50 Datum 26.05.20 Romero Ratti BasicStudio Upcycling Universität Liechtenstein