Natoya Bowen Portfolio Jun. 2014 | Page 13
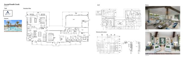
RCP
Photos
Elevation & Sections
Concierge
Concierge
Natoya Bowen Portfolio Jun. 2014 | Page 12
Natoya Bowen Portfolio Jun. 2014 | Page 14