Lehmanns Brygge |
- BYGG B1 |
- 1. ETASJE |
Lehmanns Brygge |
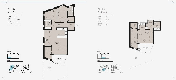
B1- 102
2-ROMS
Bygg: |
B1 |
Etasje: |
1 |
BRA: |
54 m 2 |
P-rom: |
49 m 2 |
Terrasse: |
11 m 2 |
Hage: |
30 m 2 |
|
SOV 11.8
HAGE ca 30
|
TERRASSE ca 11
BOD 3.1
|
KJØKKEN 5.2 |
ENTRE 4.8 |
BAD 4.9 |
T |
|
|
|
|
OPPHOLD 19.4 |
|
|
|
|
SOV 11.8 |
|
|
|
|
LEILIGHETSTYPE 2-ROMS |
AREAL BRA |
54 m ² |
Plan 01 |
AREAL P-ROM |
49 m ² |
Fasade: Plan:
Dato: 07.09.2016 sign / ktr / ok: TERRASSE 0 1 2 3 4 5m ca 11
FPE / KSK MÅLESTOKK A4 = 1:100
Merknader: DET VISES GENERELT TIL FORBEHOLD SATT OPP I VEDLEGG TIL KONTRAKT. AVVIK FRA VISTE LØSNINGER SAMT DE OPPGITTE AREALER Plan VIL KUNNE: FOREKOMME. AREALER ER REGNET IHT. NS 3940:2012 tittel:
status:
PROSPEKT tegn. nr:
FASADE B1 BYGG B1 BYGG B2 N
P _ B1-102
HAGE ca 30
LEILIGHET B1-102 rev. nr:
BYGG B1 BYGG B2
N
LEILIGHETSTYPE 2-ROMS |
AREAL BRA |
54 m ² |
Plan 01 |
AREAL P-ROM |
49 m ² |
|
Dato: 07.09.2016 |
sign / ktr / ok:
FPE / KSK
|
0 1 2 3 4 375m MÅLESTOKK A4 = 1:100 |