Lehmanns Brygge Juli 2018 | Seite 35

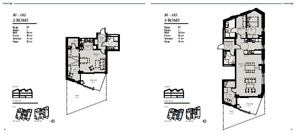
B1 - 103 GASS- PEIS 3-ROMS BAD 5.0 Bygg: Etasje: BRA: P-rom: Terrasse: Hage: B1 1 100 OPPHOLD m 2 90 m 2 49.9 11 m 2 19 m 2 BAD 5.6 BOD/GARD 7.4 SOV 13.1 GASS- PEIS ENTRE 4.2 SOV 8.7 H = 1200 BAD TERRASSE 5.0 11 OPPHOLD 49.9 HAGE 19 SOV 8.7 LEILIGHETSTYPE 3-ROMS Plan 01 Fasade: TERRASSE AREAL BRA 11 AREAL P-ROM 100 m² 90 m² Dato: 07.09.2016 sign/ktr/ok: 0 FPE/KSK MÅLESTOKK A4 = 1:100 AREAL P-ROM 100 m² 90 m² 2 LEILIGHET Dato: BYGG B1 07.09.2016 sign/ktr/ok: 0 1 BYGG B2 2 N 3 4 5m B1-103 status: SOV 8.7 AREAL B1 BRA FASADE 1 tittel: Plan: HAGE 19 GASS- PEIS PROSPEKT 3 4 tegn.nr: 5m P_B1-103 rev.nr: FPE/KSK MÅLESTOKK A4 = 1:100 TERRASSE Merknader: DET VISES GENERELT TIL FORBEHOLD SATT OPP I VEDLEGG TIL KONTRAKT. AVVIK FRA VISTE LØSNINGER ca 11 SAMT DE OPPGITTE AREALER tittel: Plan: VIL KUNNE FOREKOMME. AREALER ER REGNET IHT. NS 3940:2012 LEILIGHET status: HAGE ca 19 B1-103 PROSPEKT BYGG B1 BYGG B2 tegn.nr: N P_B1-103 rev.nr: SES GENERELT TIL FORBEHOLD SATT OPP I VEDLEGG TIL KONTRAKT. AVVIK FRA VISTE LØSNINGER SAMT DE OPPGITTE AREALER KOMME. AREALER ER REGNET IHT. NS 3940:2012 35